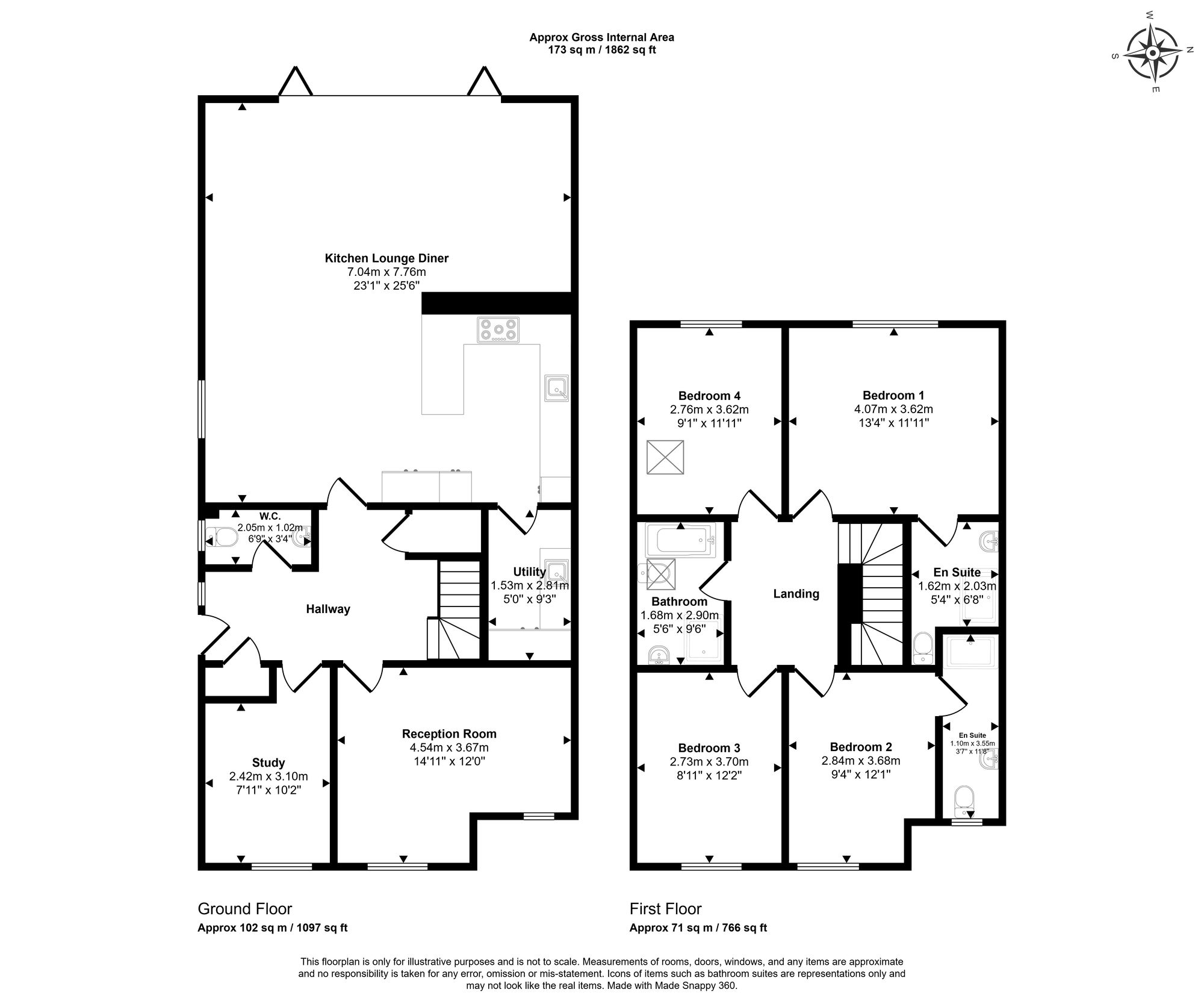
Longchamps is a high specification four bedroom new build property which is offered for sale by a local developer known for his attention to detail and high quality finish. He pays particular attention to bedroom sizes and ensuite bathrooms to make the houses exceptional family homes. Located in the village of Great Kingshill the house has local amenities close at hand as well as excellent schooling and open countryside seconds walk away with tracks and trails offering wonderful walks into the Chiltern hills
The property opens through an impressive hallway with individual access to all rooms on the ground floor and stairs to the first floor. There is a large lounge with a box bay window to the front. To the rear is an open plan Kitchen/ Family/Living space perfect for entertainment and fitted with Neff appliances including a full height fridge and freezer, oven and combi microwave, wine fridge and access to the utility room. There is also a ground floor WC, and a study to the front. On the first floor are four sizable bedrooms and 2 ensuite bathrooms. Externally to the front is plenty of parking and to the rear a garden which is laid predominantly to lawn.
Miinchoma is a high specification four bedroom new build property which is offered for sale by a local developer known for his attention to detail and high quality finish. He pays particular attention to bedroom sizes an...
This exquisite ground floor retirement apartment in a prestigious McCarthy Stonesing community offers 2 bedrooms, 2 bathrooms, ample storage, on-site parking, wheelchair access, and a careline alarm service. Ideal for do...