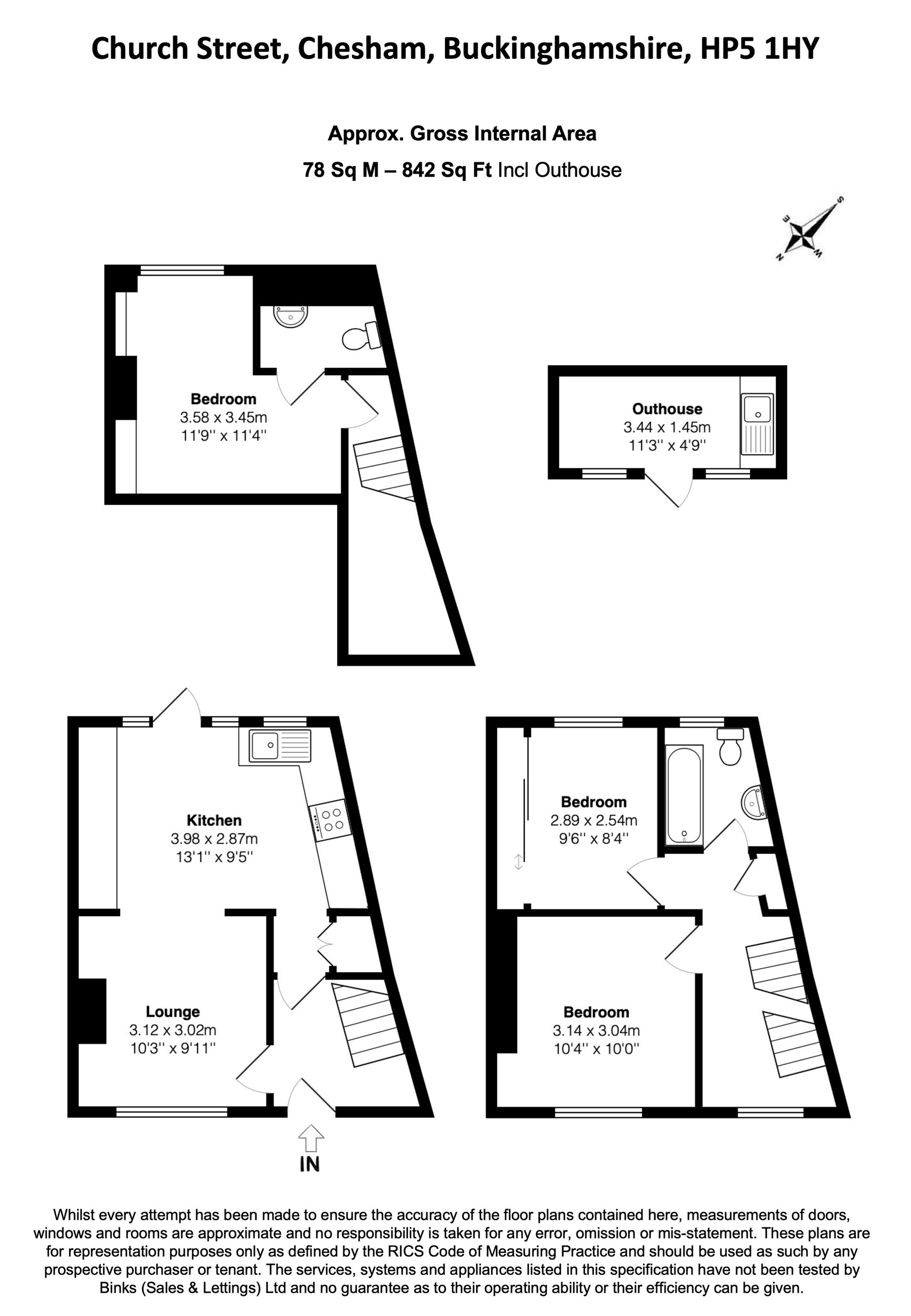
Introducing this exquisitely presented 3-bedroom end of terrace house in the sought-after Old Chesham neighbourhood. An embodiment of charm and character, this property boasts a delightful living room complete with a cosy log burner that sets the tone for warm gatherings and peaceful evenings.
Ascending the stairs, you'll find three generously sized bedrooms across 2 foors with ample space for both relaxation and productivity. The abode also features a family bathroom designed for utmost comfort, supplemented by an en-suite WC for added convenience.
Equally captivating is the meticulously designed low-maintenance rear garden, offering a place for outdoor leisure without the hassle of endless upkeep. This serene space provides the perfect backdrop for morning coffees or evening soirees under the stars.
The heart of the home, the fitted kitchen/breakfast room, beckons culinary enthusiasts with its practical layout and modern amenities. Here, functionality meets aesthetics seamlessly, allowing for seamless meal preparation and casual dining experiences.
Character abounds throughout this property, with nostalgic nuances enhancing its overall appeal. From the quirk of a well-loved bookshelf to the allure of vintage fixtures, each detail adds to the unique ambience of this residence.
Noteworthy is the detached outbuilding/utility area, a versatile space that can be tailored to suit various needs, be it storage, a workshop, or additional living quarters. This bonus feature enhances the property's practicality and offers endless possibilities for customisation.
Located in the ever-popular Old Chesham location, residents benefit from a thriving community atmosphere and easy access to local amenities. With transport links, schools, and recreational facilities within reach, this property offers the perfect blend of comfort and convenience.
In conclusion, this beautifully maintained end terrace house is a testament to timeless elegance and modern functionality. Book your viewing today to experience firsthand the allure of this inviting abode. EPC: E.
Nestled within a tranquil park, this charming 2-bed mobile home offers a peaceful retreat with gas heating, residents' car park access, pet-friendliness (cats only), and no age restrictions. Enjoy downsizing comfortably ...
We are delighted to present this charming first-floor flat boasting three bedrooms, situated in a desirable location within a short level walk to Chesham Town Centre and Train Station. The property is offered to the mark...
A 1 bed retirement property in prestigious McCarthy And Stone complex. First-floor unit with lift access, serene views, communal lounge, guest room, and easy access to high street and London transport. Private patio, lus...